logo
  • Start
  • Profil
  • Referenzen
  • Team
  • KOOPerationen
  • Kontakt
  • Datenschutz
  • Impressum

    © 2026 KOOP Architekten. All rights reserved

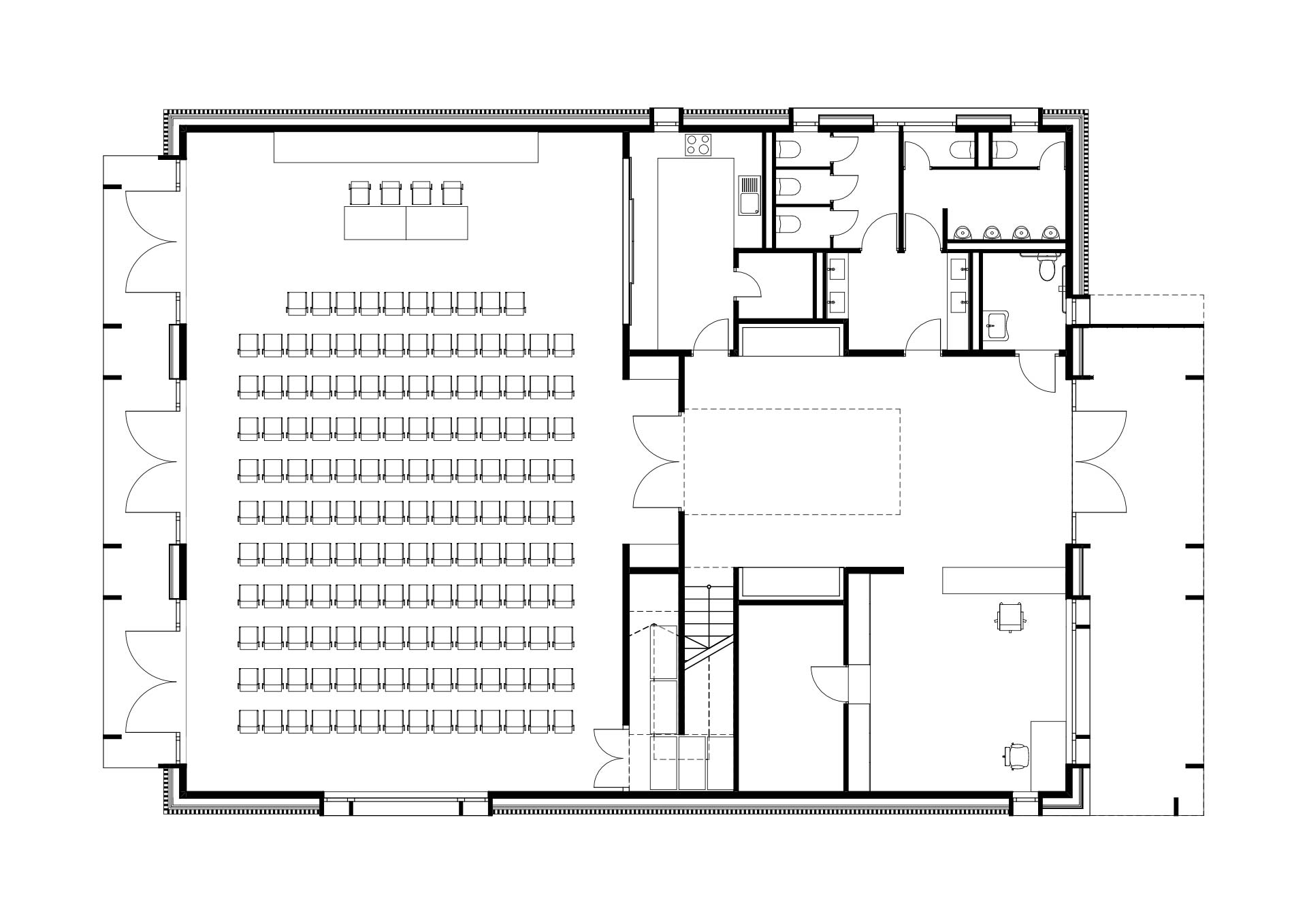
    Privatwald – Servicezentrum

    Im südlichen Industriegebiet von Schleiz entsteht auf dem Betriebsgelände der Waldbesitzer Service GmbH ein zweigeschossiger Neubau in Holzbauweise. Das Gebäude vereint moderne Büroflächen mit einem flexibel nutzbaren Veranstaltungssaal für bis zu 150 Personen. Es ergänzt das bestehende Empfangsgebäude und schafft gemeinsam mit diesem eine zentrale Anlaufstelle für die Gesellschafter der Forstbetriebsgemeinschaften, Mitarbeiter und die Öffentlichkeit.

    Die Architektur folgt einer klaren, modularen Struktur mit einem zentralen Erschließungsbereich. Die Fassadengestaltung ist geprägt von einem massiven Holzsockel im Erdgeschoss und einem offenen, rhythmisch gegliederten Fensterband im Obergeschoss. Die Figur des Gebäudes ist mit einem stark überstehenden Flachdach abgeschlossen, das als Retentionsgründach ausgeführt wird. Die verwendeten Materialien – unbehandelte Holzbohlen, Sichtestrich und großzügige Verglasungen – spiegeln den Bezug zur Forst- und Holzverarbeitung wider.

    Der Innenausbau erfolgt in sichtbarem Brettsperrholz. Neben hoher gestalterischer Qualität bietet das Gebäude auch ein nachhaltiges Energiekonzept: Die Versorgung erfolgt über eine zentrale Holzhackschnitzelheizung, ergänzt durch passive Maßnahmen wie große Dachüberstände für sommerlichen Wärmeschutz und natürliche Fensterlüftung.

    Mit dem Neubau entsteht ein funktionaler, zeitgemäßer und ökologisch durchdachter Arbeits- und Veranstaltungsort im Herzen des Firmengeländes.

    Nutzfläche: 620 m²
    Gesamtkosten: 777 T€
    Energiesystem: Holzhackschnitzelheizung auf dem Firmengelände, LPH 1-8


    • Prev
    • Next
    © 2026 KOOP Architekten. All rights reserved